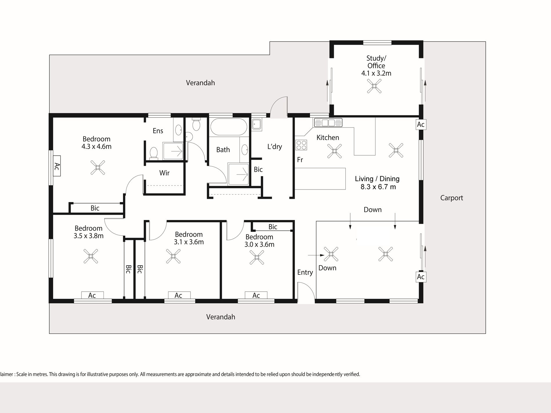
Soaring ceilings with exposed timber beams and slate floor tiles are gorgeous features as you walk in the front door of this colossal home.
In addition to the glorious height, this huge living space of 8.3 x 6.7 meters oozes potential, the windows in the stepdown lounge are elongated to draw natural light while the veranda and large trees offer shade to the living spaces and indeed, rest of the home.
So big was this area infact, that the additional adjoining formal 4.1 x 3.2m dining area was closed off in to create an addition room which is now a multi purpose space. This room also enjoying high ceilings, exposed timber beams and slate tiles with sliding doors on both sides to let the breeze flow through.
Down the hall the huge master features a large built-in robe in addition to a walk-in robe, an ensuite and offers external access. We also have 3 minor rooms all with split system air-conditioning and large built-in closet spaces. The bathroom features a shower and bathtub, with separate toilet, a large laundry with external access completes the internal spaces.
Outside on this huge 871sm corner block the possibilities are endless. The carport opens to the backyard allowing you to pull vehicles through. The opposite side of the house could also offer parking opportunities for larger boats or caravans with, still ample space for a pool to be added.
Awaiting love, a few touch ups here and there, and a coat of paint, there is plenty of opportunity at 29 Glenister loop. And the property is a must see for those wanting a project.
Please call Jessica today to find out more about this wonderful opportunity.
Disclaimer:
*The above information is provided for general information purposes only and may be subject to change. No warranty or representation is made as to the accuracy of the information and all interested parties should make their own independent enquiries relating to the information provided and place no reliance on it. Any chattels depicted or described in the information are not included in the lease unless specified in the Contract.





























