A short stroll away from world renowned Cable beach through the Minyirr Park and heritage trail located at the top of the street, you will find something very special.
A charming 3x2 home set on an impressive 810m2 block -to have this size block so close to the beach is a rare privilege, unique to the lucky few!
The front of the home features lovely, lush garden including huge coconut trees which offer privacy as well cooling shelter whilst allowing the sea breeze to filter through. There are dual driveways, with one offering undercover parking and the other additional parking which can accommodate whichever size boat or caravan you long park there.
You will be stunned as your eyes meet with the beautifully established tropical gardens with a manicured feel, created by the aesthetically pleasing placement of tiles amongst the ornate river stone which contrasts with the lush greenery lining the perimeter of this colossal 810m2 haven.
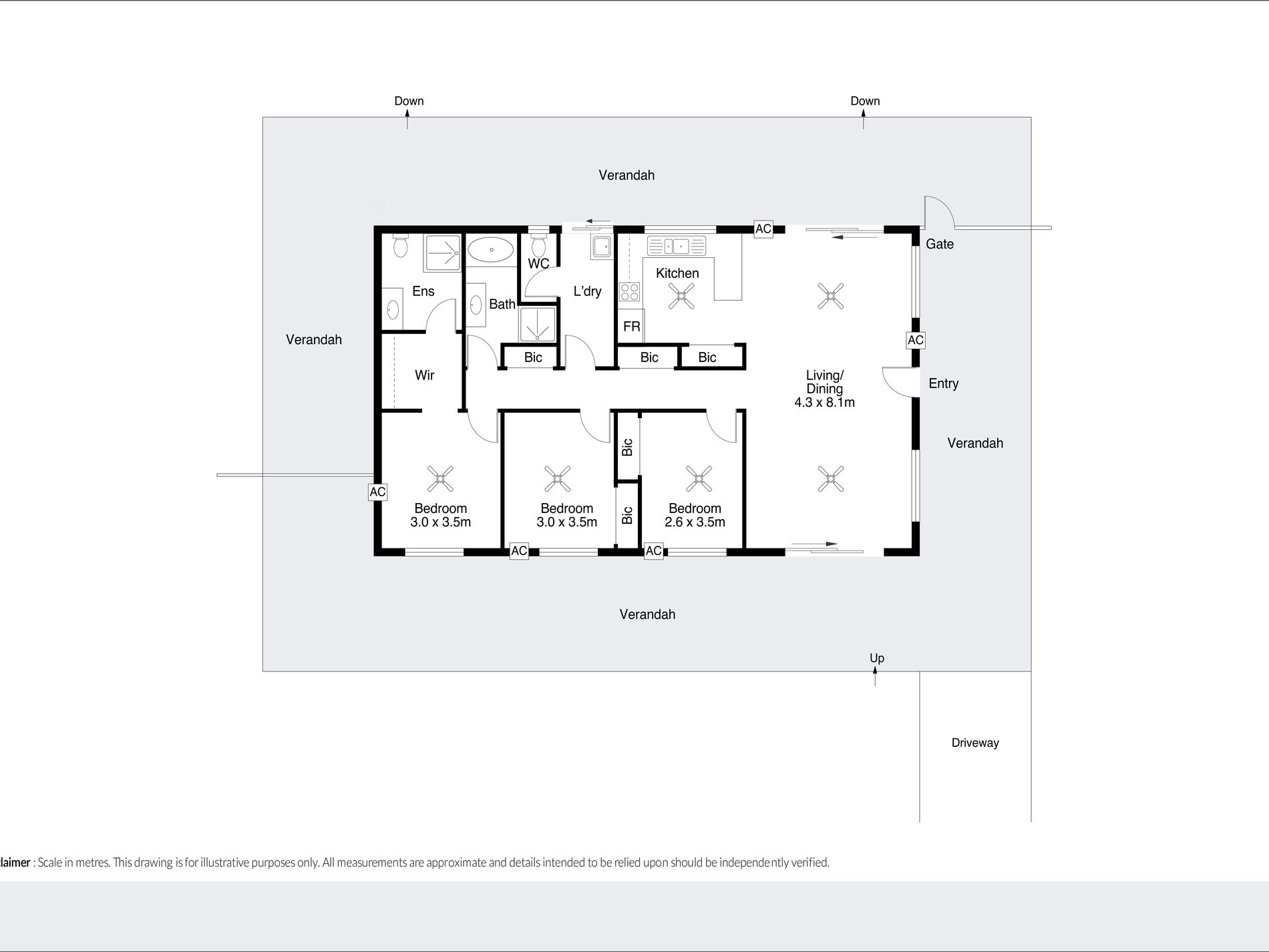
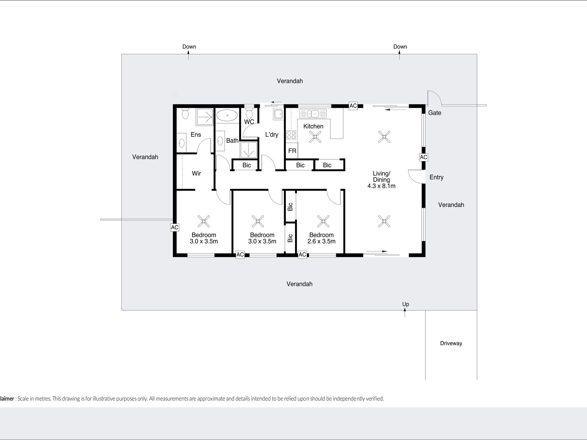
A huge veranda encircles the home, offering plenty of opportunities for differing alfresco arrangements. Inside the generous corner kitchen with double door pantry, flows seamlessly around to the dining and living spaces in a family focused open plan arrangement.
Down the hall the three large bedrooms all feature air - conditioning with the two minor rooms enjoying built in robes. The huge Master features a cleverly designed walk-through robe which flows on to the generous ensuite.
The main bathroom in the home continues the lovely soft palate tile and features a separate shower and bathtub. The water closet is thoughtfully located off the large laundry room which has an external door to take laundry directly out to the line.
This well thought out, spacious home is currently tenanted with a corporate lease for $1100 per week which ends 31/07/2026 which makes this a great option for investors who may wish to extend the lease or for owner occupiers to call this stunning property home!















































